Nos Réalisations

Entreprises, milieu agricole

Bâtiment bien être et gîte

Coupe bâtiment bien être
Poitier
Type de prestation: Rénovation, Extension
Entreprises, milieu agricole

Bâtiment bien être et gîte

Coupe bâtiment bien être
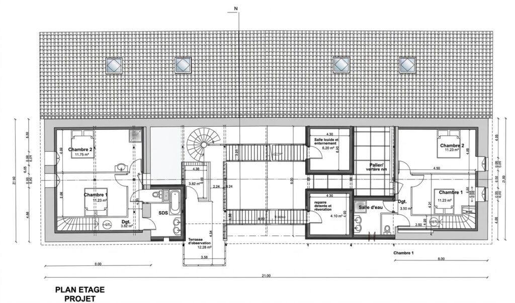
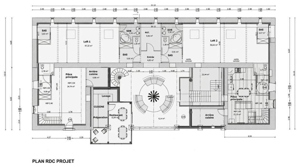
Rez-de-chaussée Bien être
Perspective Bien être et loft
Pignon bien être et gîtes
Façades longitudinales bâtiment bien être et gîte
Retour en haut