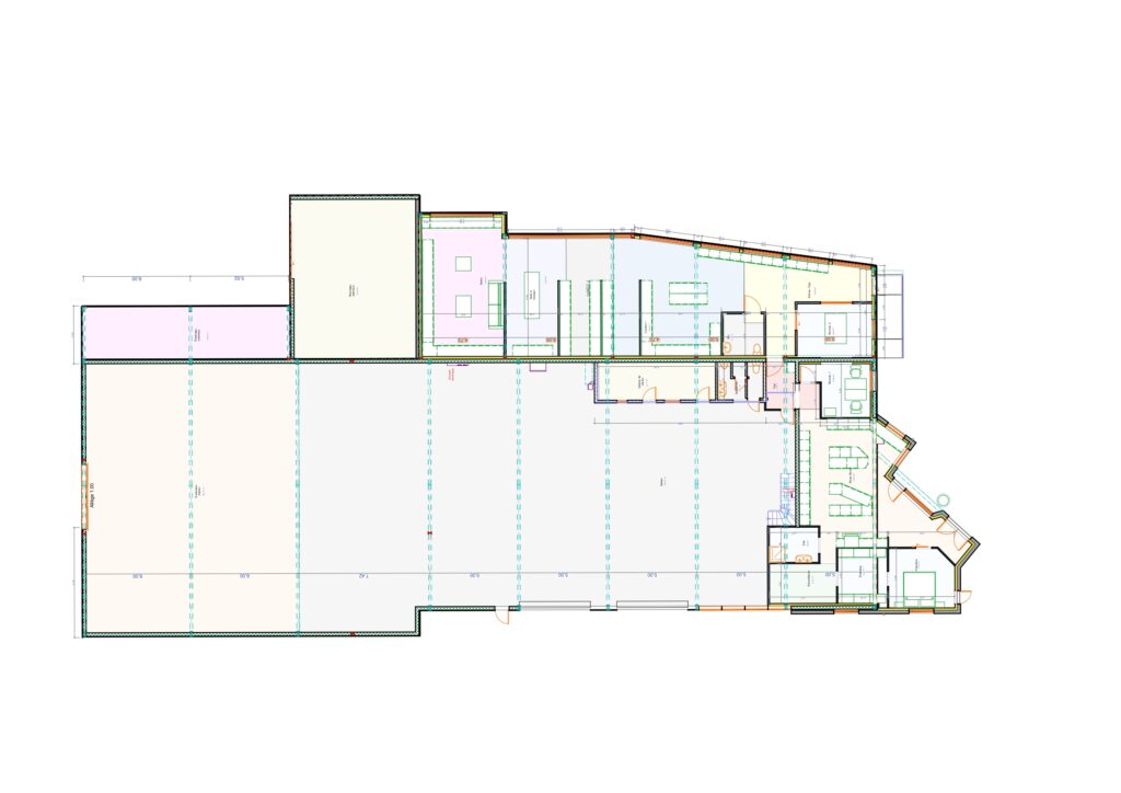
Extension hall d’exposition (showroom) et Atelier avec bardage bois vertical
EXTENSION D’UN HALL D’EXPOSITION DE 161.84 M2, D’UN LIEU DE STOCKAGE DE 165.24 M2 EN STRUCTURE BOIS, AINSI QUE D’UN ATELIER DE 184.16 M 2 EN STRUCTURE ACIER.
L’ENSEMBLE RECOUVERT BARDAGE BOIS ET EN TOITURE UNE ÉTANCHÉITÉ BITUMINEUSE SUR BAC ACIER.
La construction est en ossature bois pour les murs extérieurs avec une isolation en matériaux bio sourcé type panneaux de fibre de bois. La charpente est en bois lamellé
collé. Pour la couverture : utilisation de bacs acier, recouvert d’une isolation, et protégée par un revêtement bitumineux, identique à l’existant.
Les façades visibles de la construction sont habillées avec du bardage bois type claire-voie.
Les menuiseries utilisées seront en aluminium Ral anthracite 9005.
Extension hall d’exposition (showroom) et Atelier avec bardage bois vertical
EXTENSION D’UN HALL D’EXPOSITION DE 161.84 M2, D’UN LIEU DE STOCKAGE DE 165.24 M2 EN STRUCTURE BOIS, AINSI QUE D’UN ATELIER DE 184.16 M 2 EN STRUCTURE ACIER.
L’ENSEMBLE RECOUVERT BARDAGE BOIS ET EN TOITURE UNE ÉTANCHÉITÉ BITUMINEUSE SUR BAC ACIER.
La construction est en ossature bois pour les murs extérieurs avec une isolation en matériaux bio sourcé type panneaux de fibre de bois. La charpente est en bois lamellé
collé. Pour la couverture : utilisation de bacs acier, recouvert d’une isolation, et protégée par un revêtement bitumineux, identique à l’existant.
Les façades visibles de la construction sont habillées avec du bardage bois type claire-voie.
Les menuiseries utilisées seront en aluminium Ral anthracite 9005.

Suivez-nous !